Address: 2610 Second Street & 2605-2609 Third Street New Orleans, LA, 70125
Located at 2610 2nd Street and 2605–09 3rd Street, this ±24,953 square foot light industrial property presents a rare opportunity to acquire a well-maintained industrial asset occupying approximately 0.72 acres in New Orleans’ Historic Urban Neighborhood Mixed-Use (HU-MU) District. The site offers extensive frontage along 2nd Street, 3rd Street, and South Robertson Street, providing excellent accessibility and circulation.
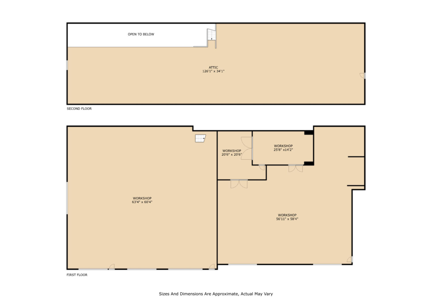
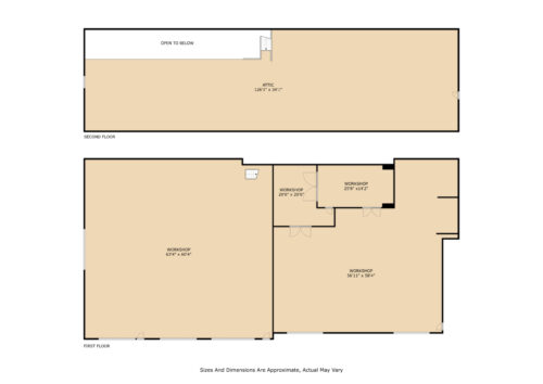
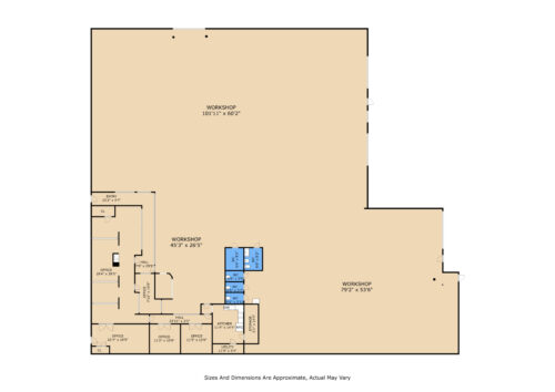
The improvements consist of three interconnected warehouse buildings totaling nearly 25,000 square feet, including approximately 2,280 square feet of finished office space with private offices, open work areas, conference room, breakroom, storage, and multiple restrooms. The primary warehouse features clear heights of approximately ±12.5 feet, roll-up door access, and a secure central concrete yard accessible through a rolling gate on 3rd Street. The property is currently utilized for millwork operations and includes specialized ventilation and dust capture infrastructure, while also offering approximately 7,000 square feet of mezzanine storage not included in the gross building area. With strong functional utility for industrial users or investors, this offering provides a compelling opportunity for continued light industrial use or future mixed-use repositioning.
List Price: $1,999,000
GBA: 24,953 SF
Site Size: 31,200 SF
Zoning: HU-MU
For further listing information or to schedule a showing please contact Pat Browne 504-250-3059 or Leo Lalla 504-975-2554























































