Address: 34239 Bayou Liberty Road, Slidell, LA 70458
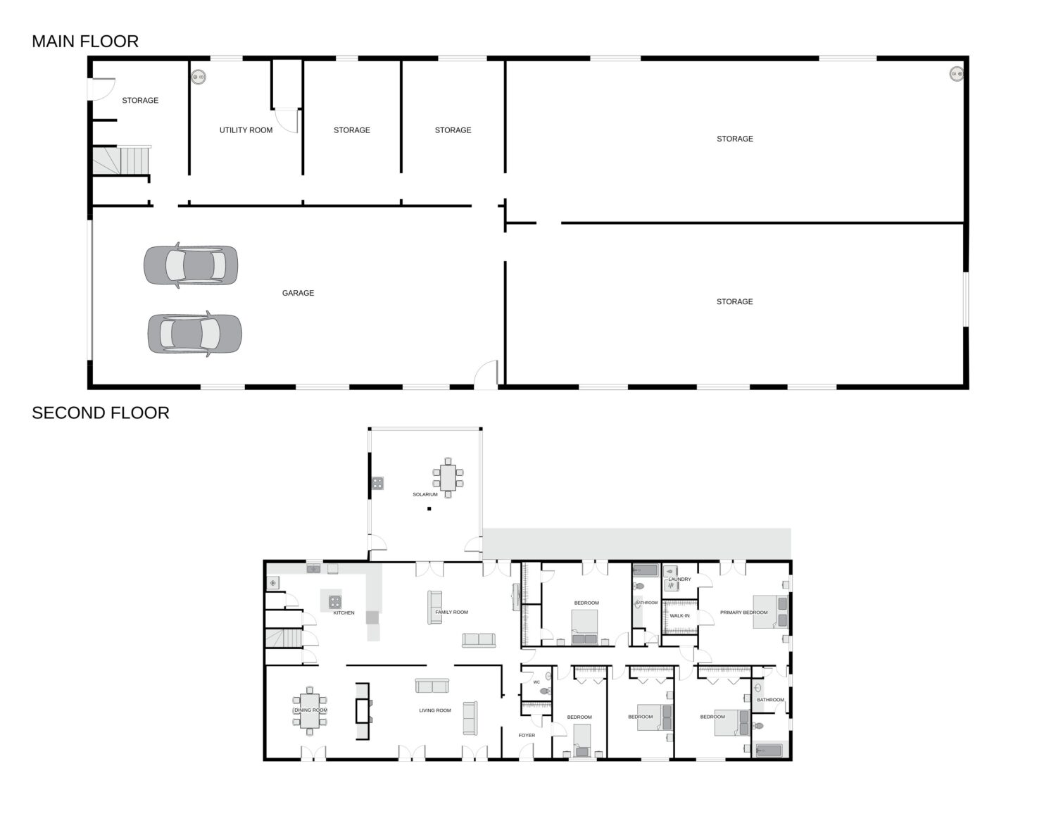
Opportunity to purchase a beautiful camp with a private marina on Bayou Liberty Road in Slidell. The waterway feeds into Lake Pontchartrain. The area is accompanied by single-family houses, waterways, retailers, and schools. The subject has a large bulkhead with a dock and utilities that are individually metered. The property is ideal for anyone searching for a sportsman camp or a single-family home. The unfinished basement is wired for electrical and would be great for a workshop, garage, or storage place. The roof and HVAC systems have just been updated. The +/- (one) 1 acre parcel located on the front right of the property can be purchased in addition to the Marsh House.
Sale Price:$595,000 | $83.68PSF
Land Area: +/- 6.52 Acres (wetlands + dryland)
Gross Building Area: +/- 7,110 sf (includes basement & porch)
Livable Area: +/- 3,325 sf
Beds/Baths: Five (5) Bedrooms / Two and a Half (2.5) Baths
Zoning: A-2 Suburban
Flood Zone: A-10
For further listing details please contact Cameron Griffin at 504.535.5680





































































